Trilocale in vendita

Diano Arentino, Via Costa - Diano Evigno
€ 129.000
3 locali 3 locali
60 Mq 60 Mq
1 bagno 1 bagno

Trilocale in vendita

Diano Arentino, Via Costa - Diano Evigno

Descrizione annuncio

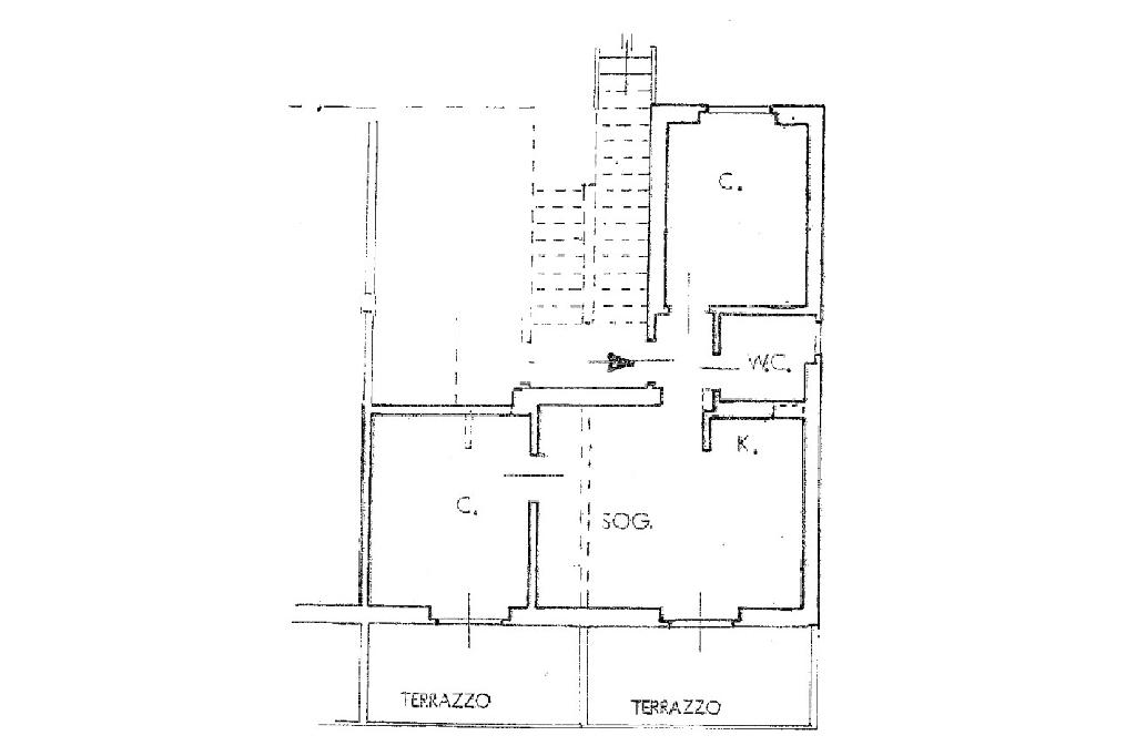
DIANO ARENTINO - Frazione Evigno, si trova un accogliente appartamento di 60 mq, situato al primo piano di una piccola palazzina costruita nel 1995.

L'immobile offre un ingresso, soggiorno con angolo cottura, ideale per chi ama la convivialità, e due camere da letto che garantiscono comfort e privacy. Il bagno è funzionale e ben organizzato con la finestra.

Uno dei punti di forza di questa proprietà è la presenza di due terrazzi vivibili, perfetti per godere della vista mare e della tranquillità della zona verde circostante.

Il riscaldamento autonomo e il climatizzatore assicurano un ambiente confortevole in ogni stagione. La comodità è ulteriormente garantita dalla presenza di un parcheggio vicino, rendendo gli spostamenti quotidiani semplici e pratici.

Questa soluzione abitativa rappresenta un'opportunità interessante per chi cerca un rifugio tranquillo senza rinunciare ai comfort moderni.

Mostra tutto

Nelle vicinanze

Ristoranti Ristoranti
Ai Torki
2,8 Km
Mostra tutto

Caratteristiche

Rif.:
61082491
Piano:
1 di 2 (Piano medio)
Balconi:
2
Terrazzi:
2
Camere da letto:
2
Arredamento:
Completo
Mostra tutto
Prezzo Prezzo
€ 129.000
Rata mutuo Rata mutuo
€ 609 / mese
Spese annue Spese annue
€ 1.000
Proponi il tuo prezzoProponi il tuo prezzo

Classe Energetica

D
D
D
D
D
D
D
D
D
EP globale non rinnovabile:
147.21 kW h/m² anno
EP globale rinnovabile:
147.21 kW h/m² anno
EP invernale del fabbricato:
EP estiva del fabbricato:
Anno di costruzione:
1995
Riscaldamento:
Autonomo
Tipo impianto:
A radiatori
Tipo alimentazione:
Altro

Ti interessa visionare l'immobile?

Fissa un appuntamento  Fissa un appuntamento

Richiedi informazioni

Clicca su Leggi per aprire l'informativa
* Questi campi sono obbligatori

Calcola il tuo mutuo

Semplice e senza impegno
Anticipo

( % )
Mutuo

( % )

pochi semplici passi

inserisci i tuoi dati
Questionario completato
Grazie per aver richiesto un appuntamento senza impegno con un nostro Consulente del Credito e Assicurativo.

Hai inserito correttamente tutti i dati necessari e a breve riceverai una e-mail con un link da convalidare per inviare i tuoi dati.
Affiliato
Studio Diano Marina D.I.
Via Cavour, 58 18013 Diano Marina (IM)

Il nostro staff


  • Valentino Gallo
    Affiliato

  • Maria Carmela Arcella
    Collaboratrice
Via Cavour, 58 18013 Diano Marina (IM)
Zona: Diano Marina
Mostra su mappa
Orari: dal lunedi al sabato dalle 9.00 alle 12.30 e dalle 14.30 alle 20.00 domenica dalle 9.00 alle 12.30
Affiliato
Studio Diano Marina D.I.
Via Cavour, 58 18013 Diano Marina (IM)

2025 Tecnocasa Franchising S.p.A. - P. IVA 08365160152 - Via Monte Bianco 60/A 20089 Rozzano (MI). Ogni agenzia ha un proprio titolare ed è autonoma. Privacy policy | Policy utilizzo | Cookie policy