Rustico in vendita

Diano San Pietro, Via Roma
€ 60.000
5 locali 5 locali
110 Mq 110 Mq
1 bagno 1 bagno

Rustico in vendita

Diano San Pietro, Via Roma

Descrizione annuncio

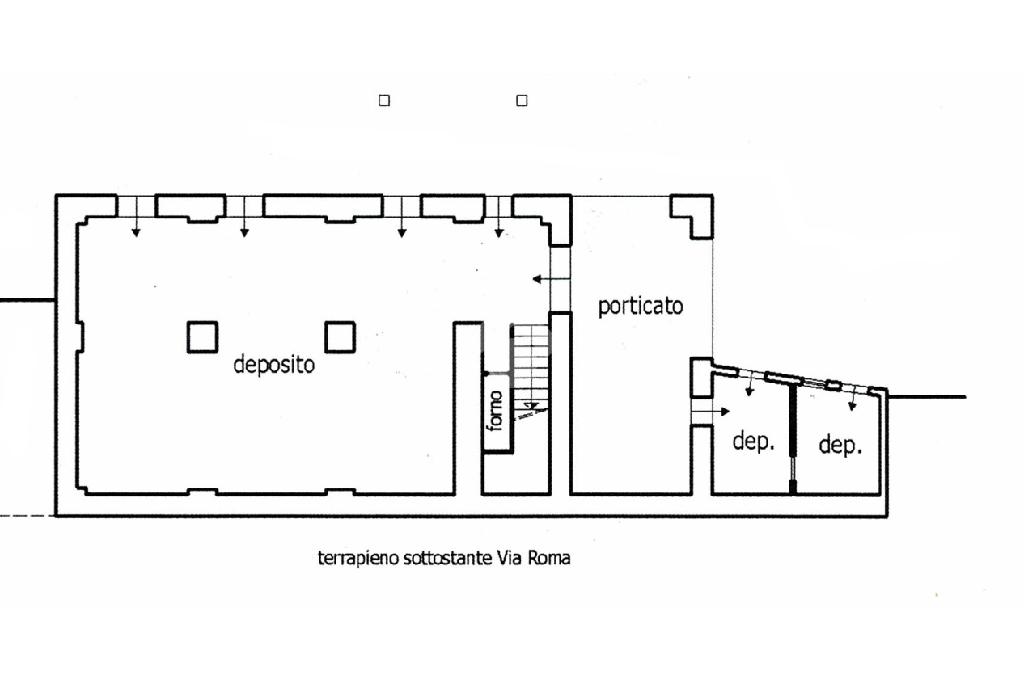
Diano San Pietro: nel centro del paese proponiamo un ex frantoio con ingresso indipendente completamente da ristrutturare.

L' immobile ha due entrate, una dal portone del condomino, composto da tre alloggi, senza spese condominiali e il secondo ingresso dal giardino.

Dal giardino si accede al porticato e al portone principale che ci permette di avere un ingresso indipendente.

Il girdino è di circa 30 mt. con all' interno si trova un deposito comodo per ricoverare le biciclette, la moto ecc....

Il rustico è accatastato come magazziono, per tanto bisogna fare il cambio di destinazione d' uso.

L' interno è molto particolare in quanto i soffitti sono a volta e alcune pareti e la base delle volte sono in pietra a vista.

All' interno si trova anche un vecchio forno a legna.

Esternamente il giadino ci permette di mangiare fuori nelle belle giornate di sole o di adibirlo a parcheggio.

Per chi desidera più terreno è possibile acquistare il terreno affianco al magazzino, nella planimetria è segnato di rosso, la superficie è di circa 200 mt. e se non fosse sufficiente è possibile acquistare tutto il mappale fino al fiume.

La zona è tranquilla e comoda ai negozi di prima necessità, alimentare, macelleria, farmacia che si trovano nella piazza del paese che dista 30 mt. dalla casa.

Nel paese sono presenti anche la scuola materna ed elementare ed a soli 650 metri e situata la stazione.

E' possibile raggiugere Diano Marina e le spiagge in bicicletta o a piedi in quanto la strada è pianeggiante e dista 2,1 km dak mare.

Mostra tutto

Nelle vicinanze

Trasporto pubblico Trasporto pubblico
Trasporto pubblico
2,4 Km
Diano
Diano
790 m
Ricariche auto elettriche Ricariche auto elettriche
Hotel Olympic | e-Station
2,5 Km
Scuole Scuole
Scuola Materna
340 m
Scuola secondaria "U. Novaro"
2,5 Km
Scuola Primaria "A. Manzoni"
2,5 Km
Scuola Materna SS. Annunziata
2,8 Km
Farmacia Farmacia
Farmacia
80 m
Parafarmacia del Centro
2,6 Km
Farmacia Guglielmi
2,7 Km
Farmacia Al Mare - Dr. Sciolli
2,8 Km
Ospedali Ospedali
Centro Medico Dea Diana
2,5 Km
Asl 1 Imperiese
3,0 Km
Supermercati Supermercati
Basko
2,0 Km
Conad
2,5 Km
Pam
2,5 Km
Supermarcato Coal
2,6 Km
Arimondo s.r.l
2,7 Km
Negozi Negozi
Zumbo Teresa
2,4 Km
Panificio Di Maria
2,5 Km
Panificio Lanini
2,5 Km
Onest Market
2,6 Km
Rolfi
2,6 Km
Bar Bar
Bar Lady
2,2 Km
Bocciofila Dianese
2,4 Km
Cafè des Amis
2,4 Km
Chocolat
2,5 Km
Bar Mimosa
2,6 Km
Ristoranti Ristoranti
Girasole
1,9 Km
Il Pozzo dei Desideri
2,3 Km
Ristorante la Meridiana
2,4 Km
Fantapizza
2,4 Km
Osteria dell'Acquasanta
2,6 Km
Mostra tutto

Caratteristiche

Rif.:
40450648
Piano:
Terra di 2
Totale piani:
2
Camere da letto:
2
Arredamento:
Assente
Condizionamento:
Assente
Mostra tutto
Prezzo Prezzo
€ 60.000
Rata mutuo Rata mutuo
€ 283 / mese
Spese annue Spese annue
€ 0
Proponi il tuo prezzoProponi il tuo prezzo

Altre caratteristiche

Classe Energetica

G
G
G
G
G
G
G
G
G
EP globale non rinnovabile:
0.00 kW h/m² anno
EP globale rinnovabile:
0.00 kW h/m² anno
Anno di costruzione:
1980
Riscaldamento:
Assente

Ti interessa visionare l'immobile?

Fissa un appuntamento  Fissa un appuntamento

Richiedi informazioni

Clicca su Leggi per aprire l'informativa
* Questi campi sono obbligatori

Calcola il tuo mutuo

Semplice e senza impegno
Anticipo

( % )
Mutuo

( % )

pochi semplici passi

inserisci i tuoi dati
Questionario completato
Grazie per aver richiesto un appuntamento senza impegno con un nostro Consulente del Credito e Assicurativo.

Hai inserito correttamente tutti i dati necessari e a breve riceverai una e-mail con un link da convalidare per inviare i tuoi dati.
Affiliato
Studio Diano Marina D.I.
Via Cavour, 58 18013 Diano Marina (IM)

Il nostro staff


  • Valentino Gallo
    Affiliato

  • Maria Carmela Arcella
    Collaboratrice
Via Cavour, 58 18013 Diano Marina (IM)
Zona: Diano Marina
Mostra su mappa
Orari: dal lunedi al sabato dalle 9.00 alle 12.30 e dalle 14.30 alle 20.00 domenica dalle 9.00 alle 12.30
Affiliato
Studio Diano Marina D.I.
Via Cavour, 58 18013 Diano Marina (IM)

2026 Tecnocasa Franchising S.p.A. - P. IVA 08365160152 - Via Monte Bianco 60/A 20089 Rozzano (MI). Ogni agenzia ha un proprio titolare ed è autonoma. Privacy policy | Policy utilizzo | Cookie policy